Retour aux projets

Gilbert-Trolliet

Localisation:
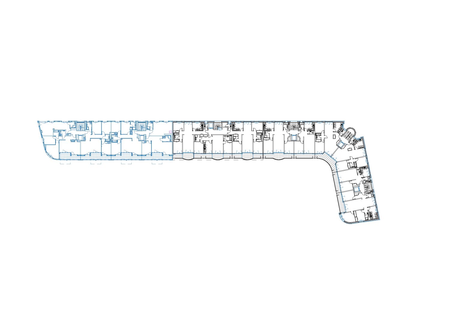
Chemin Gilbert-Trolliet 2 à 12
1209 Genève (GE)

Direction architecturale et des travaux pour la conception et réalisation d’une surélévation de 2 niveaux.

Création de 30 nouveaux logements et assainissement énergétique des 6 immeubles d’habitation.

Assainissement énergétique des 4 activités et 84 logements existants : raccordement au CAD, changement des fenêtres, changement des protections solaires, isolation par l’extérieur et finition crépis.

Travaux réalisés en milieu habité.

Durée des travaux : de Juin 2023 à Septembre 2025

Maîtres d’ouvrage :

CAP Prévoyance

Realstone SA pour le compte du fonds Solvalor 61

Photos : KMS architectes SA

En chiffre :

  • 30 Nouveaux logements locatifs
  • 84 Logements existants assainis
  • 4 Activités existantes assainis
  • 118 pièces habitables ajoutées
  • 99 places de parking en sous-sol
  • 6 immeubles
  • IUS = 2.53
  • Droits à bâtir surélévation = 2’884 m2
  • Droit à bâtir existant = 9’255 m2
  • Droits à bâtir total = 12’139 m2
  • Cubes SIA immeubles surélévations = 10’126 m3
  • Cubes SIA immeubles existants = 36’764 m3
  • Cubes SIA immeubles total = 46’890 m3
  • Cubes SIA garage = 8’632 m3

 

Pour en savoir plus, téléchargez notre plaquette

Télécharger la plaquette