Retour aux projets

Roday

Localisation:
Chemin de Roday 52,
1256 Troinex (GE)

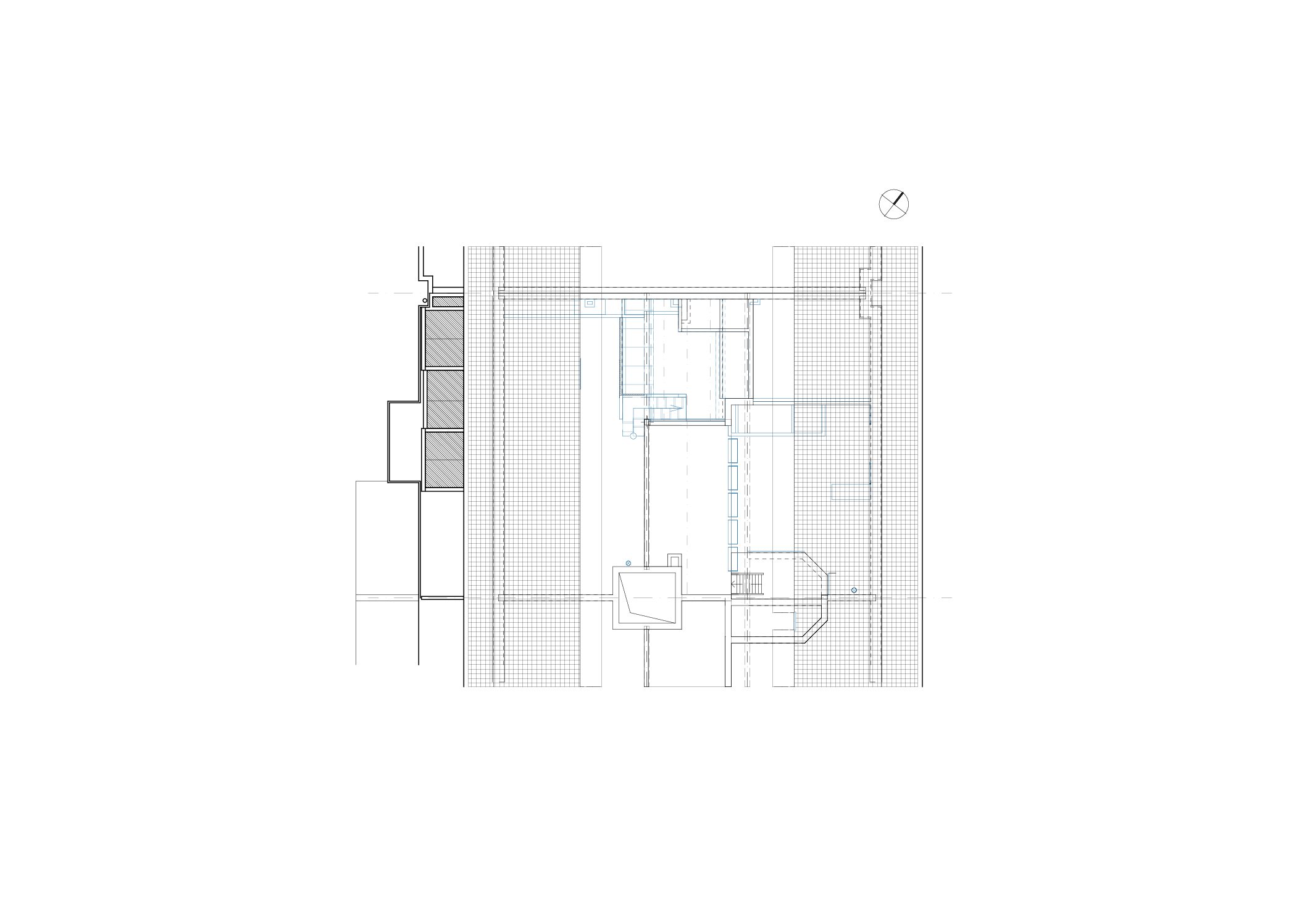
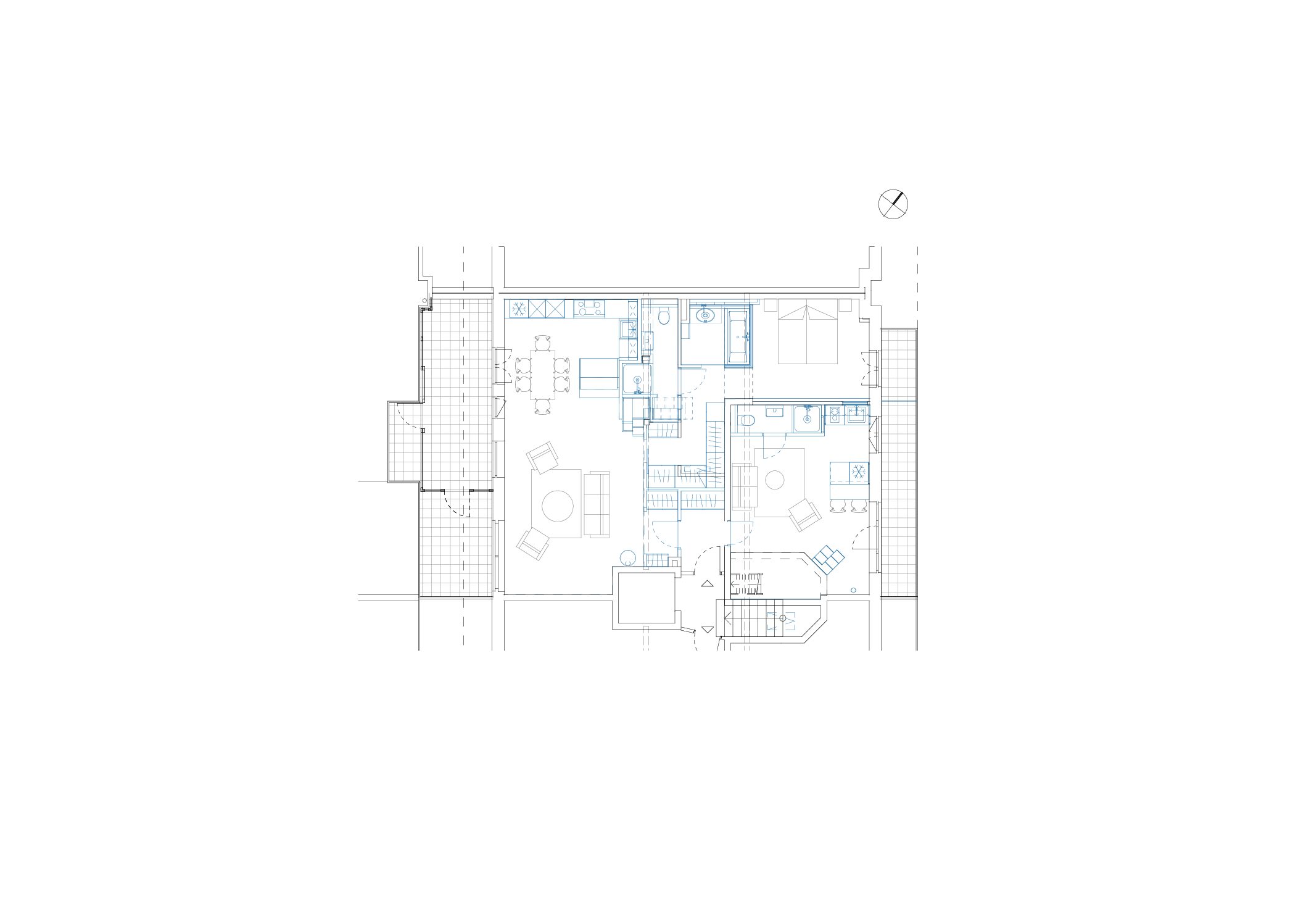
Direction architecturale et des travaux pour la rénovation et transformation d’un logement PPE en appartement de 3 pièces et un studio en duplex.

Durée des travaux : de Décembre 2018 à Août 2019

Maîtres d’ouvrage : Privé

Photos : KMS architectes SA

En chiffre :

  • 2 Nouveaux logements
  • 1 Logements de 3 pièces avec mezzanine de 87 m2 net
  • 1 Studio duplex de 41 m2 net
  • 5 pièces habitables
  • Droits à bâtir = 145 m2
  • Cubes SIA immeubles = 600 m3

 

Pour en savoir plus, téléchargez notre plaquette

Télécharger la plaquette